Negozio in vendita

Albano Laziale, Via Del Mare - Pavona
€ 579.000
4 locali 4 locali
680 Mq 680 Mq
2 bagni 2 bagni

Negozio in vendita

Albano Laziale, Via Del Mare - Pavona

Descrizione annuncio

ALBANO LAZIALE Pavona - Via Del Mare -

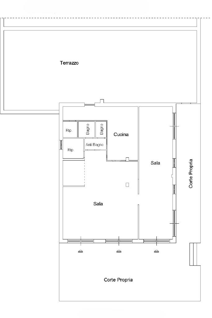
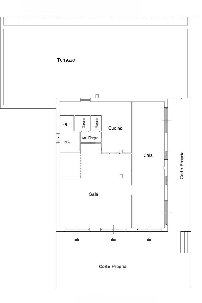
Locale posto su due livelli così composto:

. Locale commerciale di 230 mq attualmente diviso in tre ambienti con antibagno, doppio servizio e spogliatoio.

H: 3.5 mt

Finestrato e condizionato.

Unico accesso fronte strada su via di passaggio e cinque vetrine ad angolo.

Doppia canna fumaria.

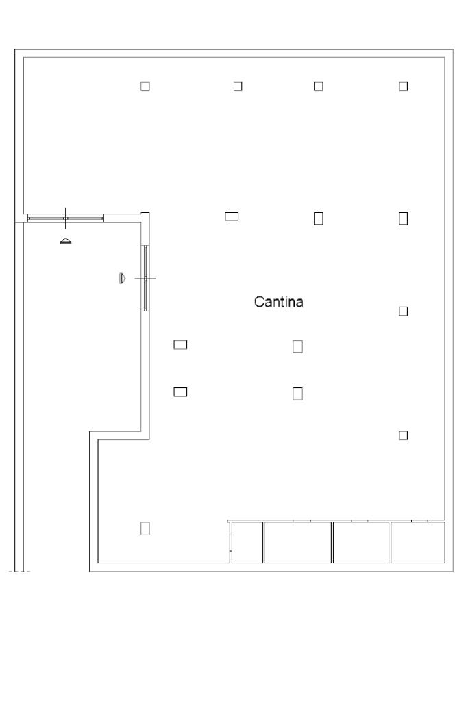
. Locale uso deposito di 450 mq composto di un unico ambiente con accesso da rampa esterna con doppio accesso carrabile.

Corte ad uso esclusivo antistante di 100 mq e corte ad uso esclusivo retrostante con accesso sul retro di 200 mq.

Parcheggio riservato di 500 mq.

Per visualizzare la disposizione interna e le foto cliccare su planimetria

Ogni agenzia ha un proprio titolare ed è autonoma

Affiliato Tecnocasa - Piazzale Padre Pio da Pietrelcina, 7.8.9 - 00073 CASTEL GANDOLFO (RM)

Tel 069311844

Mobile con servizio di messaggistica Whatsapp: 3276985718

rmhi1

Mostra tutto

Nelle vicinanze

Trasporto pubblico Trasporto pubblico
Pavona
Pavona
240 m
Cancelliera
Cancelliera
1,8 Km
Papiri
Papiri
2,6 Km
Astrini
Astrini
2,8 Km
Scuole Scuole
Scuole
670 m
Scuola Asilo Pio XII
910 m
Istituto Comprensivo "Fabrizio De André"
3,0 Km
Farmacia Farmacia
Farmacia Camerucci
310 m
Farmacia
830 m
Supermercati Supermercati
Conad
800 m
Todis
810 m
Panorama
1,5 Km
Sigma
1,8 Km
EuroSpin
1,9 Km
Negozi Negozi
Pane Pizza Dolci Casarecci
870 m
Negozi
1,9 Km
Ristoranti Ristoranti
Fuori I Secondi
840 m
Trattoria della Sosta
1,0 Km
Mostra tutto

Caratteristiche

Rif.:
61138425
Piano:
1 di 4 (Piano su più livelli)
Condizionamento:
Autonomo
Ascensore:
No
Riscaldamento:
Autonomo
Giardino:
Privato
Mostra tutto
Prezzo Prezzo
€ 579.000
Rata mutuo Rata mutuo
€ 2.737 / mese
Spese annue Spese annue
€ 0
Proponi il tuo prezzoProponi il tuo prezzo

Classe Energetica

G
G
G
G
G
G
G
G
G
EP invernale del fabbricato:
EP estiva del fabbricato:
Anno di costruzione:
1980
Riscaldamento:
Autonomo
Tipo impianto:
Ad aria
Tipo alimentazione:
Aria

Ti interessa visionare l'immobile?

Fissa un appuntamento  Fissa un appuntamento

Richiedi informazioni

Clicca su Leggi per aprire l'informativa
* Questi campi sono obbligatori

Calcola il tuo mutuo

Semplice e senza impegno
Anticipo

( % )
Mutuo

( % )

pochi semplici passi

inserisci i tuoi dati
Questionario completato
Grazie per aver richiesto un appuntamento senza impegno con un nostro Consulente del Credito e Assicurativo.

Hai inserito correttamente tutti i dati necessari e a breve riceverai una e-mail con un link da convalidare per inviare i tuoi dati.
Affiliato
Immobili Commerciali Castelli Romani Srls
P.le Padre Pio da Pietrelcina, 7/8/9 00040 Castel Gandolfo (RM)

Il nostro staff


  • Vanessa Tuzzi
    Coordinatrice
P.le Padre Pio da Pietrelcina, 7/8/9 00040 Castel Gandolfo (RM)
Zona: Castelli Romani-Ardeatina-G.R.A.-Velletri-Appia-Nettunense
Mostra su mappa
Orari: dal lunedì al venerdì h 9.00/19.30; sabato h 9.00/13.00
Affiliato
Immobili Commerciali Castelli Romani Srls
P.le Padre Pio da Pietrelcina, 7/8/9 00040 Castel Gandolfo (RM)

2026 Tecnocasa Franchising S.p.A. - P. IVA 08365160152 - Via Monte Bianco 60/A 20089 Rozzano (MI). Ogni agenzia ha un proprio titolare ed è autonoma. Privacy policy | Policy utilizzo | Cookie policy