Ufficio in affitto

Ariccia, Via Campoleone
€ 4.000 / mese
4 locali 4 locali
600 Mq 600 Mq
6 bagni 6 bagni

Ufficio in affitto

Ariccia, Via Campoleone

Descrizione annuncio

ARICCIA - Via Campoleone -

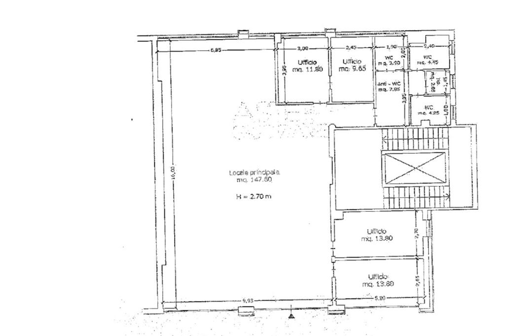
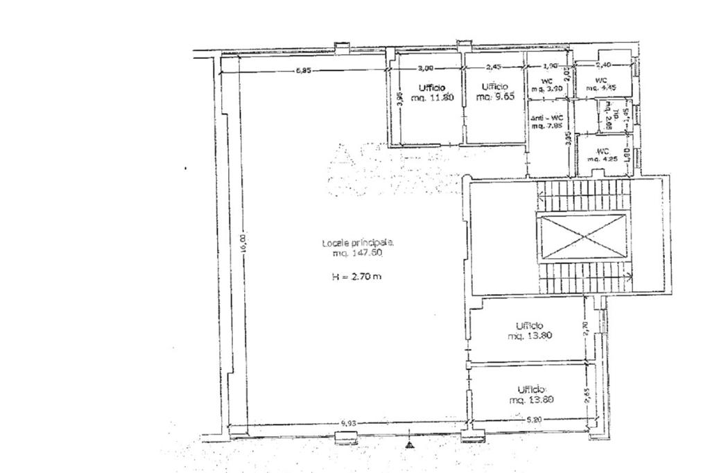
Locale uso ufficio posto al piano secondo attualmente diviso in quattro ambienti con antibagno e sei servizi.

H: 3 mt

Locale finestrato.

Unico ingresso da piazzale in uso comune

10 posti auto di pertinenza tramite accesso da scala interna o ascensore

Per visualizzare la disposizione interna e le foto cliccare su planimetria

Ogni agenzia ha un proprio titolare ed è autonoma

Affiliato Tecnocasa - Piazzale Padre Pio da Pietrelcina, 7.8.9 - 00073 CASTEL GANDOLFO (RM)

Tel 069311844

Mobile con servizio di messaggistica Whatsapp: 3276985718

rmhi1

Mostra tutto

Nelle vicinanze

Trasporto pubblico Trasporto pubblico
Cecchina
Cecchina
1,1 Km
Farmacia Farmacia
Farmacia
260 m
Dottor Marini
1,5 Km
Ospedali Ospedali
Nuovo Ospedale dei Castelli Romani
490 m
Istituto San Giovanni Di Dio
2,7 Km
Supermercati Supermercati
Supermercati
1,3 Km
Conad
1,7 Km
Negozi Negozi
Negozi
230 m
Ristoranti Ristoranti
Ristoranti
380 m
Il vecchio montano
1,2 Km
Mostra tutto

Caratteristiche

Rif.:
61160018
Piano:
2 di 4 con ascensore (Piano medio)
Condizionamento:
Autonomo
Ascensore:
Riscaldamento:
Autonomo
Giardino:
Privato e Condominiale
Mostra tutto
Prezzo Prezzo
€ 4.000 / mese
Spese annue Spese annue
€ 0

Classe Energetica

G
G
G
G
G
G
G
G
G
EP invernale del fabbricato:
EP estiva del fabbricato:
Anno di costruzione:
1970
Riscaldamento:
Autonomo
Tipo impianto:
Ad aria
Tipo alimentazione:
Aria

Ti interessa visionare l'immobile?

Fissa un appuntamento  Fissa un appuntamento

Richiedi informazioni

Clicca su Leggi per aprire l'informativa
* Questi campi sono obbligatori
Affiliato
Immobili Commerciali Castelli Romani Srls
P.le Padre Pio da Pietrelcina, 7/8/9 00040 Castel Gandolfo (RM)

Il nostro staff


  • Vanessa Tuzzi
    Coordinatrice
P.le Padre Pio da Pietrelcina, 7/8/9 00040 Castel Gandolfo (RM)
Zona: Castelli Romani-Ardeatina-G.R.A.-Velletri-Appia-Nettunense
Mostra su mappa
Orari: dal lunedì al venerdì h 9.00/19.30; sabato h 9.00/13.00
Affiliato
Immobili Commerciali Castelli Romani Srls
P.le Padre Pio da Pietrelcina, 7/8/9 00040 Castel Gandolfo (RM)

2026 Tecnocasa Franchising S.p.A. - P. IVA 08365160152 - Via Monte Bianco 60/A 20089 Rozzano (MI). Ogni agenzia ha un proprio titolare ed è autonoma. Privacy policy | Policy utilizzo | Cookie policy