Negozio in affitto

Castel Gandolfo, Via dei Pini - Pavona Laghetto
€ 2.400 / mese
7 locali 7 locali
200 Mq 200 Mq
2 bagni 2 bagni

Negozio in affitto

Castel Gandolfo, Via dei Pini - Pavona Laghetto

Descrizione annuncio

CASTEL GANDOLFO - Pavona - Via Dei Pini -

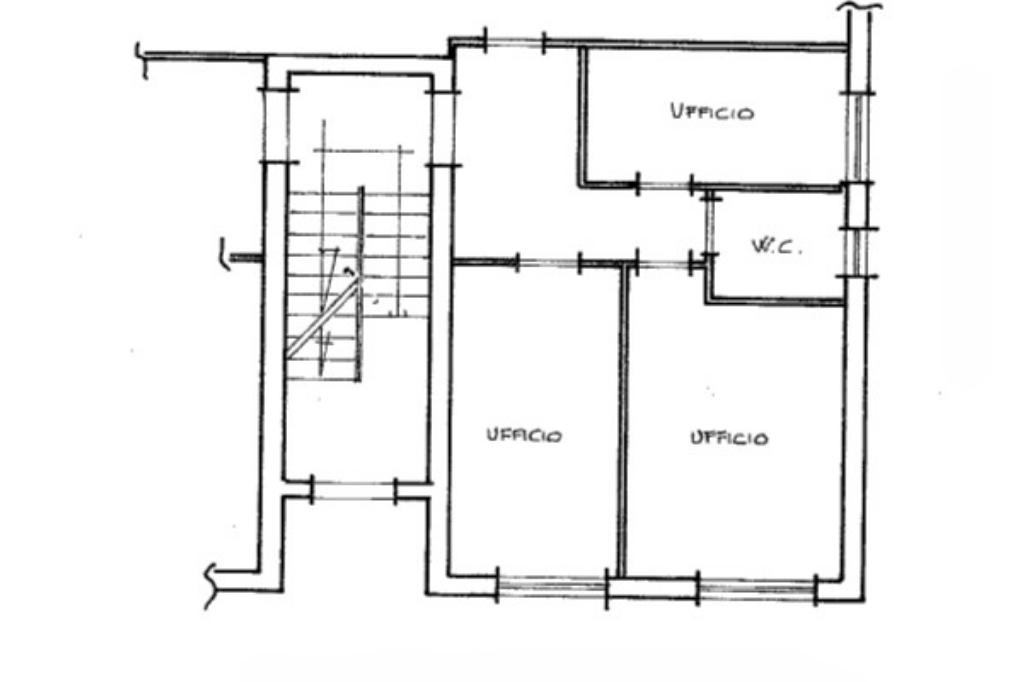
Locale commerciale composto di un unico ambiente. Finestrato.

H:3.3 mt

Annesse due zone ufficio di 50 mq ciascuna da 3 vani e servizio. Finestrate.

Doppio ingresso uno fronte strada e un secondo ingresso da entrata condominiale retrostante.

Piazzale in uso comune di 250 mq con accesso comodo a mezzi furgonati.

Per visualizzare la disposizione interna e le foto cliccare su planimetria

Ogni agenzia ha un proprio titolare ed è autonoma

Affiliato Tecnocasa - Piazzale Padre Pio da Pietrelcina, 7.8.9 - 00073 CASTEL GANDOLFO (RM)

Tel 069311844

Mobile con servizio di messaggistica Whatsapp: 3276985718

rmhi1

Mostra tutto

Nelle vicinanze

Trasporto pubblico Trasporto pubblico
Pavona
Pavona
680 m
Cancelliera
Cancelliera
2,0 Km
Trasporto pubblico
2,7 Km
Fermata Cotral
Fermata Cotral
2,8 Km
Scuole Scuole
Scuola Asilo Pio XII
80 m
Scuole
260 m
Universidad Dallensis
2,9 Km
Farmacia Farmacia
Farmacia
280 m
Farmacia Camerucci
610 m
Ospedali Ospedali
Pronto Soccorso Ospedale "San Giuseppe"
2,2 Km
Presidio Ospedaliero San Giuseppe Albano
2,3 Km
Ospedale San Giuseppe
2,3 Km
Supermercati Supermercati
Todis
260 m
Conad
380 m
EuroSpin
1,1 Km
Panorama
1,4 Km
Pork's House
2,0 Km
Negozi Negozi
Pane Pizza Dolci Casarecci
230 m
Negozi
1,9 Km
Alimentari
2,8 Km
Bar Bar
Bar
2,5 Km
Ristoranti Ristoranti
Fuori I Secondi
200 m
Trattoria della Sosta
220 m
Ristoranti
2,7 Km
Pappamondo
2,9 Km
Mostra tutto

Caratteristiche

Rif.:
61145351
Piano:
1 di 3 (Piano su più livelli)
Condizionamento:
Autonomo
Ascensore:
No
Riscaldamento:
Autonomo
Giardino:
Condominiale
Mostra tutto
Prezzo Prezzo
€ 2.400 / mese

Classe Energetica

G
G
G
G
G
G
G
G
G
EP invernale del fabbricato:
EP estiva del fabbricato:
Anno di costruzione:
1970
Riscaldamento:
Autonomo
Tipo impianto:
Ad aria
Tipo alimentazione:
Aria

Ti interessa visionare l'immobile?

Fissa un appuntamento  Fissa un appuntamento

Richiedi informazioni

Clicca su Leggi per aprire l'informativa
* Questi campi sono obbligatori
Affiliato
Immobili Commerciali Castelli Romani Srls
P.le Padre Pio da Pietrelcina, 7/8/9 00040 Castel Gandolfo (RM)

Il nostro staff


  • Vanessa Tuzzi
    Coordinatrice
P.le Padre Pio da Pietrelcina, 7/8/9 00040 Castel Gandolfo (RM)
Zona: Castelli Romani-Ardeatina-G.R.A.-Velletri-Appia-Nettunense
Mostra su mappa
Orari: dal lunedì al venerdì h 9.00/19.30; sabato h 9.00/13.00
Affiliato
Immobili Commerciali Castelli Romani Srls
P.le Padre Pio da Pietrelcina, 7/8/9 00040 Castel Gandolfo (RM)

2025 Tecnocasa Franchising S.p.A. - P. IVA 08365160152 - Via Monte Bianco 60/A 20089 Rozzano (MI). Ogni agenzia ha un proprio titolare ed è autonoma. Privacy policy | Policy utilizzo | Cookie policy